Grúa Viajera, polipasto eléctrico y más

En Industrial COM, diseñamos proyectos a la medida, desde el concepto inicial, hasta la instalación y puesta en marcha.
Nuestra misión es adaptarnos a las necesidades del cliente, sin ofrecer soluciones estándares. Diseñamos cuantas veces sea necesario para superar expectativas.
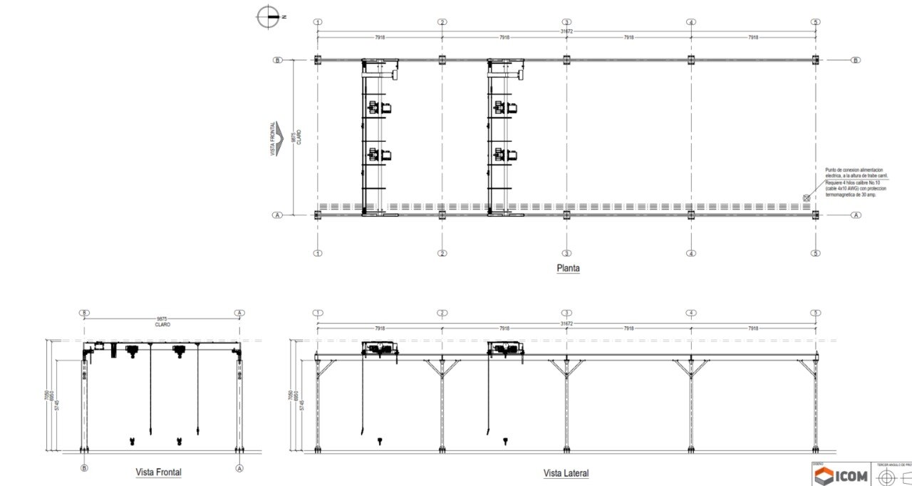
Cada proyecto es dibujado en Autocad y verificado con el cliente. La colaboración constante y la comunicación aseguran que el diseño esté claro y cumpla con las necesidades.
Los dibujos son el lenguaje universal y claro para evitar malos entendidos y errores en diseño y ejecución.
Validamos y aprobamos todos los proyectos con ingenieros estructurales certificados. Esto nos permite cumplir con las normas y los estándares según las OSHA, CMAA, ASME y todos los organismos que rigen los criterios de seguridad al diseñar estructuras de acero.
Nuestras grúas y proyectos pasan por un estricto control de calidad. Seguimos normas en soldadura, tolerancias, pintura y acabado.
Además, siempre entregamos un dossier con evidencia del proceso de calidad y el manual de los equipos.
